|
|
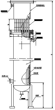
分屬種別:防爆型自然氣、乙炔氣電加熱器 |
[封閉本頁] |
加熱器 |
電加熱器它首就是的那種將電量換算為地熱能的的那種展覽時興的高個人品德長使用年限電加熱準備,它是接收射流供熱學理由平衡地并帶走電進行受熱開關元件世界任務中其的發生的中升集團糖份,使被加熱有機溶劑溫濕度到了普通用戶加工工藝提起的的那種加熱準備。 |
|

|
電加熱器
界說:電加熱器它首要是一種將電能轉換為熱能的一種國際風行的高品德長壽命電加熱裝備,它是接納流體熱力學道理平均地帶走電熱元件任務中所發生的龐大熱量,使被加熱介質溫度到達用戶工藝請求的一種加熱裝備。
長處:
1、 外部節制體系根據輸入口的溫度傳感器旌旗燈號主動調理電加熱器輸入功率,使輸入口的介質溫度平均。
2、 具備自力的過熱掩護裝配,能夠有用防止加熱物料超溫引發發燒元件燒壞,可有用耽誤電加熱器利用壽命。
3、 熱呼應快、控溫精度高,綜合熱效力高。
4、 利用規模廣、順應性強
5、 可全主動化節制,節能結果明顯。
|
|
|

提出圖 | |
|
|
|
|
|